Billerica Wiki
Structures
Plans
Map
Sources
Go
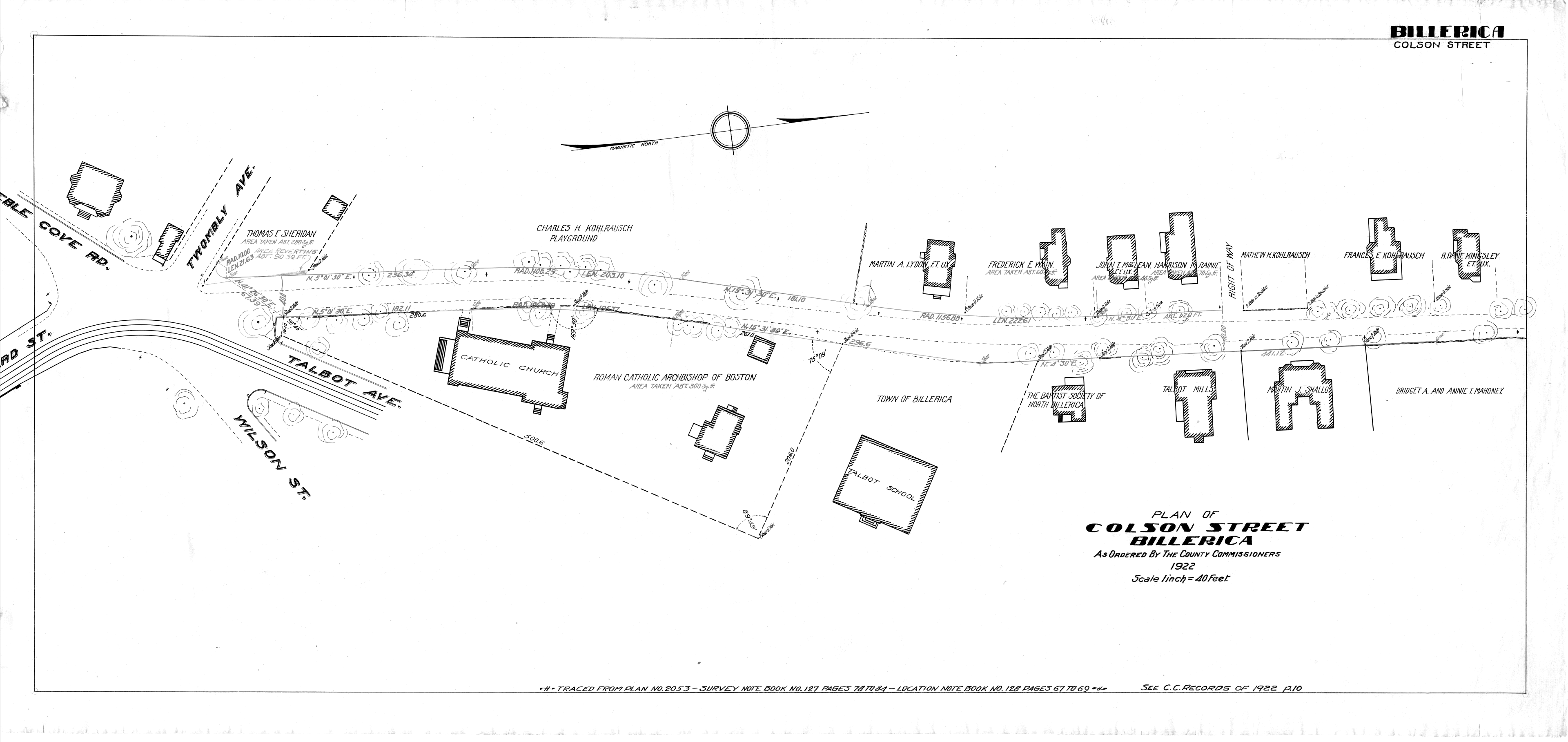
Colson Street, 1922 (Plan Book 910 Page 11)
Previous
Next