Billerica Wiki
Structures
Plans
Map
Sources
Go
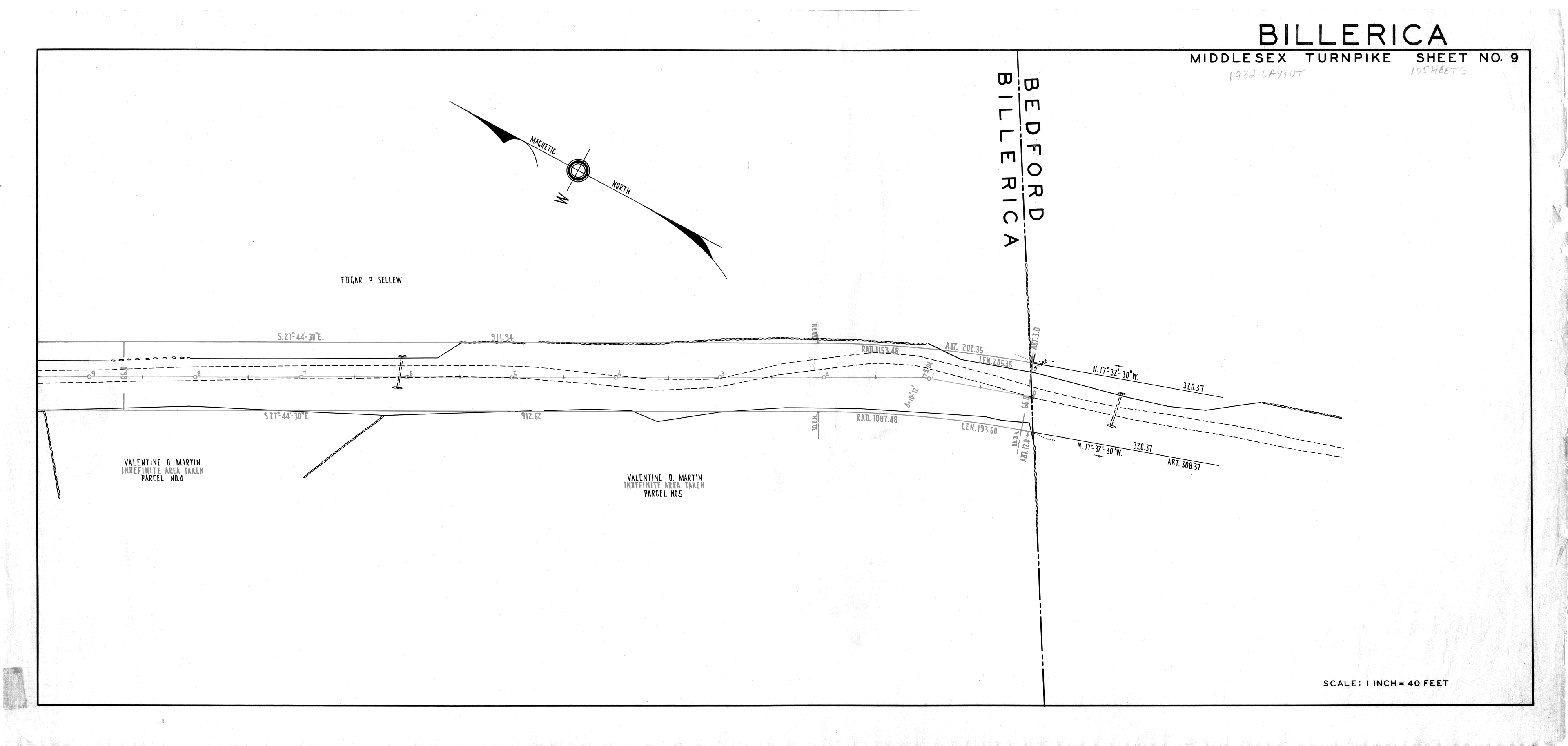
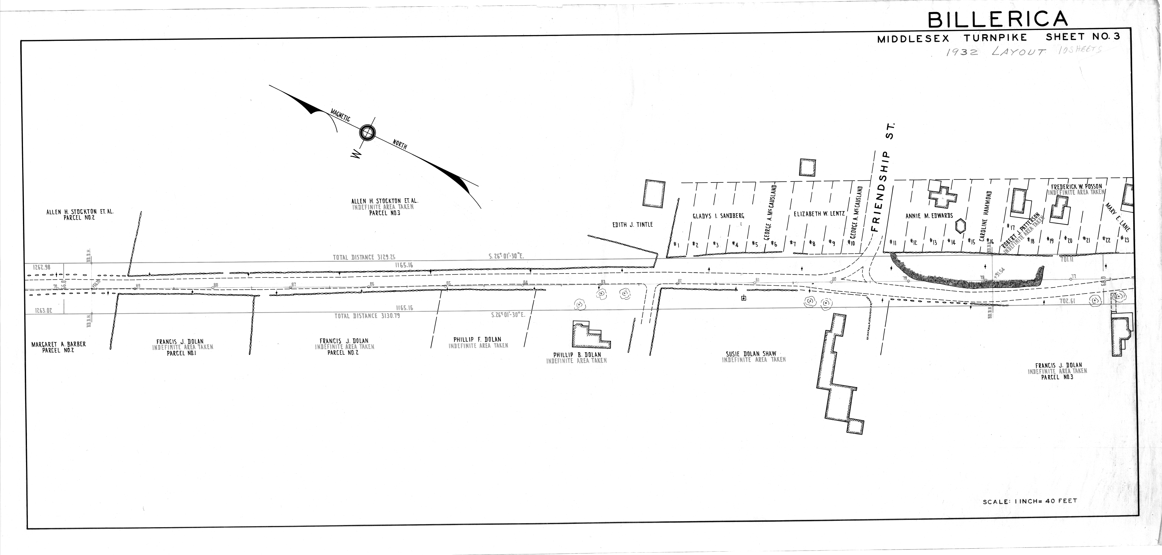
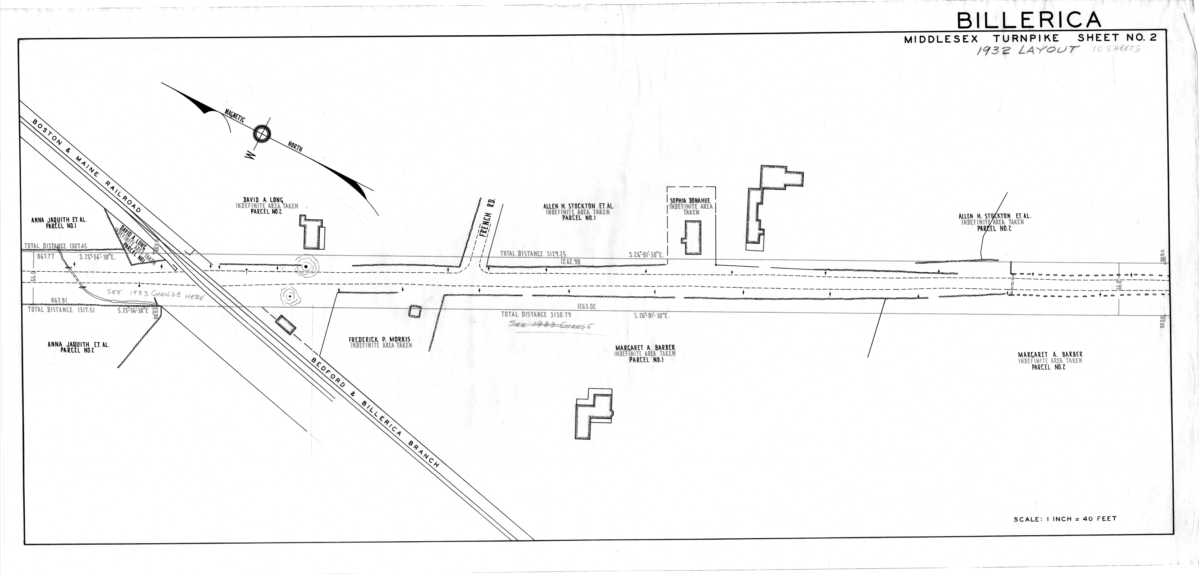
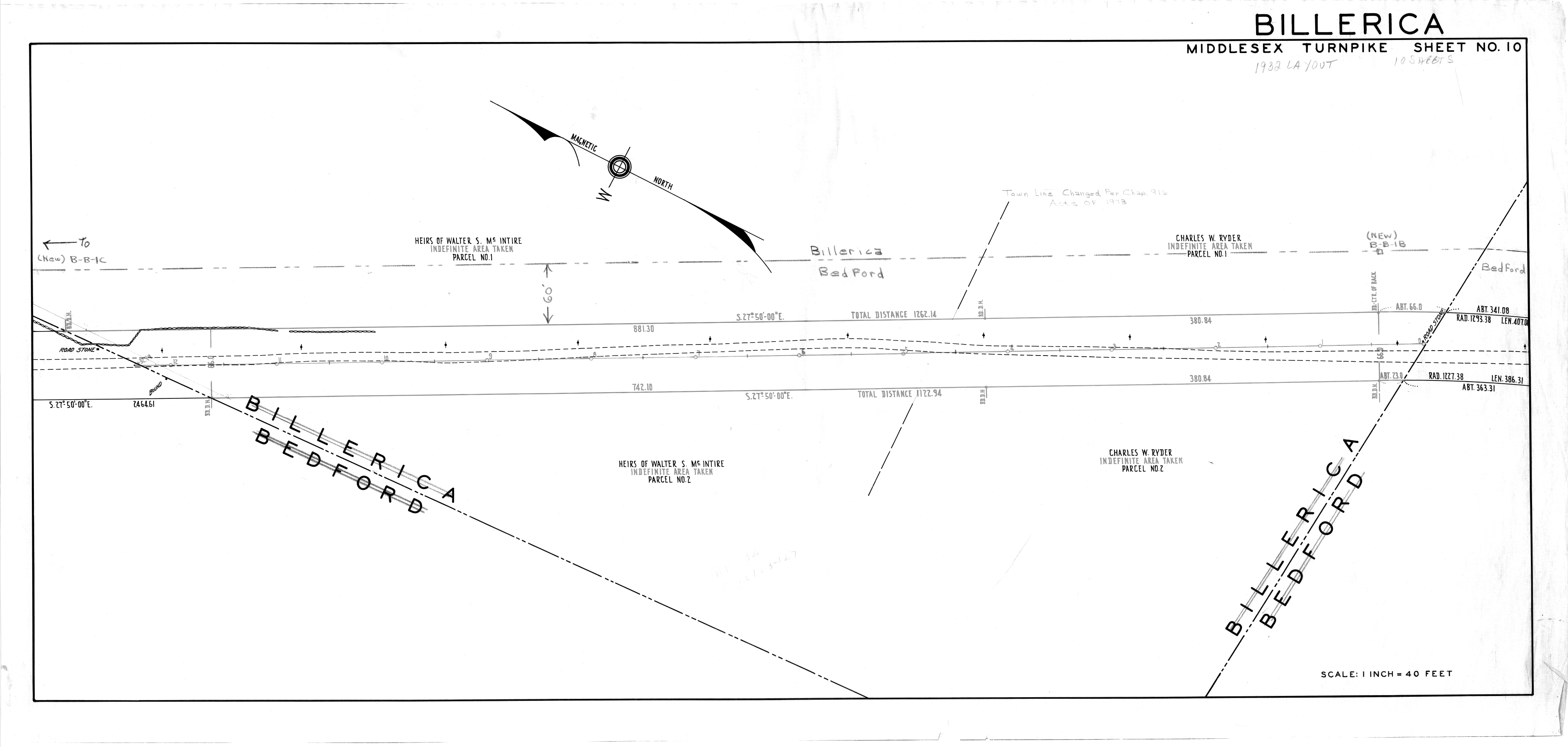
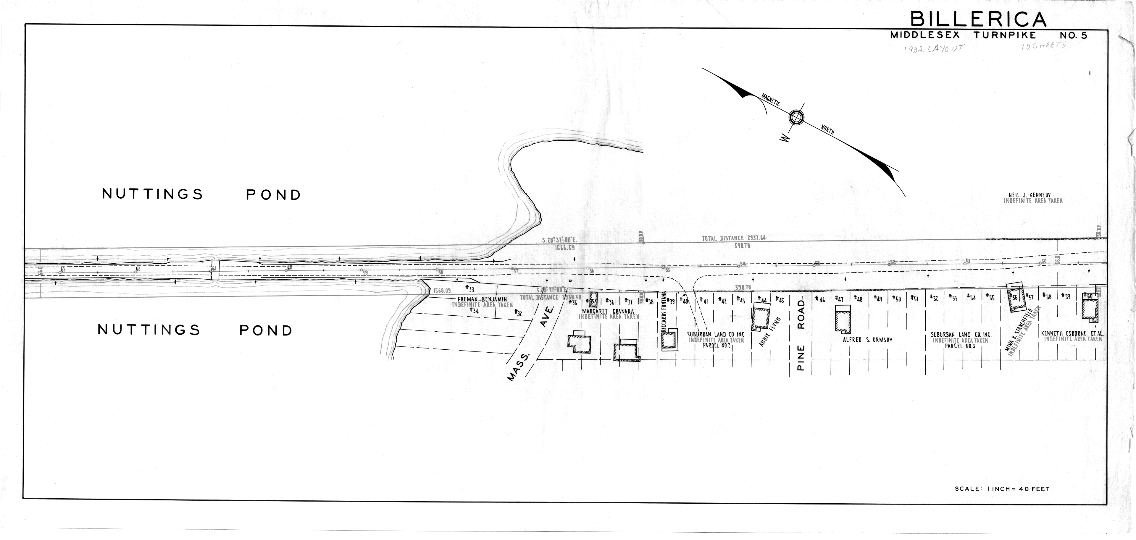
Middlesex Turnpike, 1932 (Plan Book 910 Page 22)
Previous
Next